Private relax space for everyday living.
The project is an expanded part of large family with 3 generations ’s residence into addition land site that on the east of the first house land, located on man-made lake side in a peaceful village in suburban of Bangkok, Samutprakan.
Owner is senior retired lady living with her mother.
The layout set the house striped fully width of land near the front road, that omit large open lakeside space like “private hidden garden”.
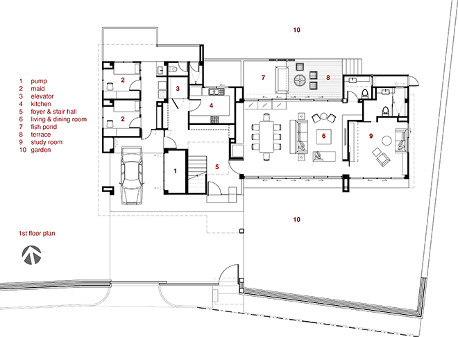
Following the concept of traditional Thai house, Tai-Toon”, which is the space under a Thai house that normally use during daytime, the house was designed to have the “Tai-Toon” space which is the main living and dining area with natural light and air flow all day.
The planning of main function have fully openable both two sides to take garden view with lake as background and allowing wind to circulate cross the house’s orientation. Outdoor terrace was set continue from indoor living area, combined with a swing seat and fish pond.
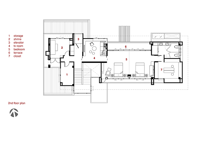
The upper floor was shared for owner and her mother in one bedroom, able to split by teak wood partition. The function was plan for owners take care each other conveniently. There are terrace with clear glass railing, for clearly view of garden and lake.
The house appears as modern architecture with almost horizontal line and common house’s look elements senses homely, contrast by large vertical window of stair hall near front door. Entrance foyer was combined with stair hall, to be vertical space and get more natural light from large window, made overall of house’s spaces more variety. Warm homey atmosphere for interior by teak wood.















